KUBU Prefabs specializes in the design, manufacturing, and construction of high-quality prefabricated buildings using insulated Chromadek panel systems. We offer a versatile range of prefabricated building solutions, including standard insulated wall and roof panels, advanced roof and façade systems, and fire-rated insulated panel options. Our modular building systems are engineered for durability, energy efficiency, and rapid installation, making them ideal for residential, commercial, industrial, and remote site applications.
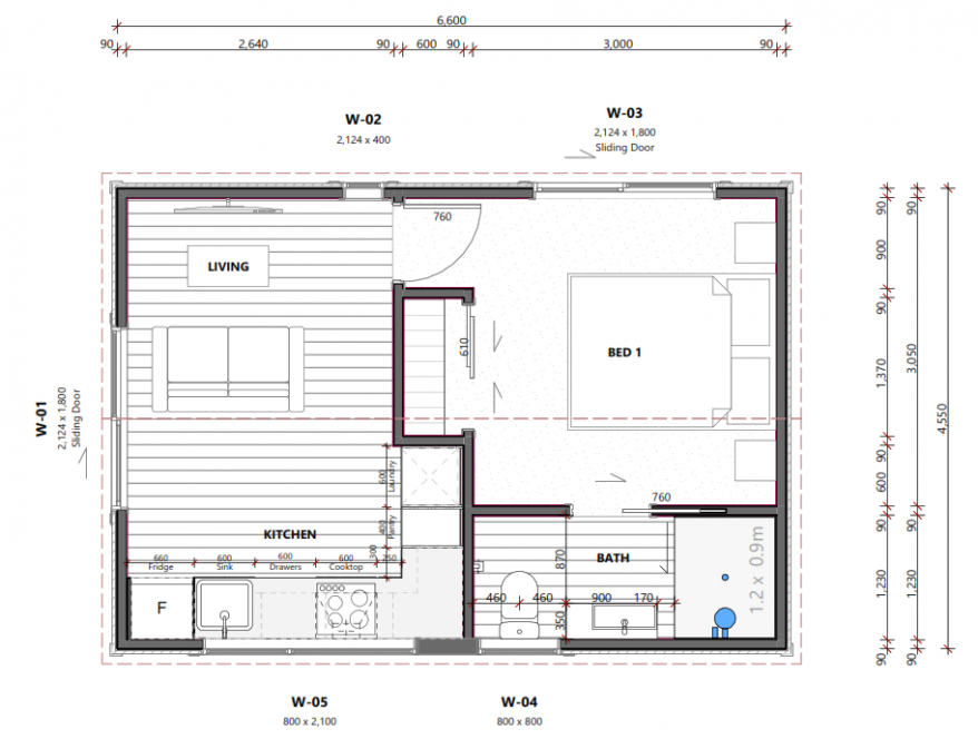
THE 30SQM SPRINGBOK STUDIO

The Springbok Studio Unit is the perfect compact one-bedroom, one-bathroom solution, ideal for modern, efficient living.
The unit features a well-designed bathroom with a shower, basin, and toilet, along with a functional kitchenette that can be equipped with optional gas appliances.
Each unit is fully customisable, allowing finishes and layout details to be tailored to meet our customers’ exact needs and lifestyle requirements.
The Springbok Studio Unit is constructed on a durable concrete raft foundation as standard, with an optional steel frame available for clients requiring a relocatable or modular solution.







A Chromadek panel is a high-performance pre-painted steel panel commonly used in prefabricated buildings, modular structures, and industrial construction. It is valued for its strength, durability, weather resistance, and clean modern finish, making it ideal for both commercial and residential prefab applications.